Log In

Our Brands

Helpful Tools

Search

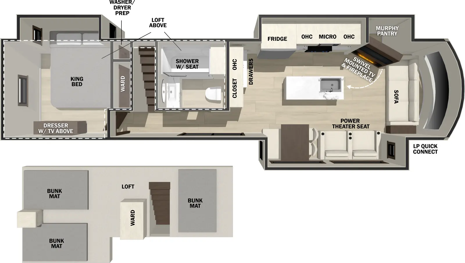
Explore 2026 Cottage Destination Trailers 40CDL Floorplan

The 40CDL Cottage is an innovative bunkhouse with an upper loft that provides sleeping for three plus storage!. The rear king bedroom has its own entry/exit door for added privacy, and includes a closet with washer/dryer prep, wardrobe, and dresser with TV. The bathroom gives you a residential shower with built-in seat, skylight, and linen cabinet. The large island kitchen provides plenty of counter space and includes residential appliances and a bonus pantry.

Hitch Weight
1,825 lb.
GVWR
14,000 lb.
UVW
12,754 lb.
CCC
1,246 lb.
Exterior Length
40' 6"
Exterior Height
12' 10"
Exterior Width
101"
Fresh Water
75 gal.
Gray Water
82 gal.
Black Water
41 gal.
Awning Size
18'

40CDL Floorplan Cottage Destination Trailers Features & Options

    • New 3" Wall with R11 Insulation
    • New 80" Tall, Dual Pane Patio Door
    • New 3 Coleman MACH 8 Energy Saver 15,000 BTU Air Conditioners
    • New “Dual Pane” Square Windows with Reflective Integrated Shade & Screens
    • 101" Wide Body Frame
    • “True” Gelcoat Exterior (The Best of the Best in Exteriors)
    • Cedar Creek’s Famous All-Aluminum Superstructure on 16" Centers or less
    • 3M® Bonded Sidewalls
    • TT only (2) 7000# Axles
    • 4' x 6' ABS, Ribbed, Removable Underbelly Panels
    • AlphaPly TPO Roof Membrane featuring a Limited Lifetime Warranty - 40% Thicker
    • Suburban ST-60 60,000 BTU Tankless Water Heater
    • 12-Volt Heating Pads on All Black, Grey, & Fresh Water Tanks
    • Electric Awning with LED Night Lights
    • Individual Shut Off Valves - Kitchen and Bathroom
    • New Water Resistant, Bug Resistant Vixenite Slide Room floor panels
    • New Fenderskirt with pop rivets
    • One Year of ™ RV Roadside Assistance
    • Free Membership to Forest River Owners Group F.R.O.G.
    • 50" Smart Television w/Swing Arm
    • 32" Smart Television in the BR
    • 12v Bluetooth Stereo Speaker in ceiling
    • New Travelfi™ Pay as you go internet
    • Stainless Steel Refrigerator with Ice Maker
    • 3 Burner Gas Oven with Pull-Out Pan Drawer
    • Vixeinite™ Flush Floor Slides in Kitchen and Living Area Flush Floor Slides in Kitchen and Living Area
    • Residential-Style Kitchen Island with Solid Surface Counter with Flush Mount, Stainless Steel, Work Station Sink
    • Murphy Pantry
    • Residential-Style Dovetail, Self-Closing Drawers, and Hidden Hinge Cabinet Doors
    • Stainless Steel, 30” Over the Range Microwave
    • Cutting Board Drawer with Cut-out Trash Funnel
    • Power Fan with Rain Sensor Override in Kitchen
    • Prepped for Dishwasher
    • Vinyl Floor Covering
    • Dining table with (2) chairs, Storage Ottoman, Table Extension, and Hidden Silverware Drawer
    • New Single Window, Fiberglass Cap with Electric Sidewinder Blackout Shade (where available)
    • New 52" Ceiling Fan in the Living room
    • Power Theater Seating with USB charging ports (40CCK, 40CRS, 40CDL)
    • Luxury Hide-a-Bed Sofa or “L” Sofa (where available)
    • 48" x 30" One Piece, Fiberglass Shower with glass doors, and Upgraded Shower Head
    • Large Bath Vanity with Solid Surface Countertop (Where Applicable)
    • 18" High Porcelain Toilet with Top Circular Flush System
    • Extra Storage for Linens
    • LED Night Lighting under the Vanity
    • Residential-Style Headboard with Luxurious Bedding Décor
    • Individual Reading Lighting above the Bed
    • USB Ports
    • Standard 72 x 80 King Bed
    • Flip-Up Dresser Top with Hidden Storage
    • Prepped for an Optional Washer and Dryer
    • 12V Motion lighting in the Closet
    • 12' Power Awning on Dining Slide
    • Slide-Out Awning Toppers
    • Fisher / Paykel Dishwasher Drawer in the Island
    • Heat Pump
    • Splendide Washer / Dryer
    • 4 Sets of Stablizer Jacks